城南の不動産トレンド
耳寄りブログ
南雪谷の邸宅街に完成したシックな秀邸
こんにちは、エイムハウスマーケティング担当横山です。
気がつけば2025年も今月で終了、時の流れが年々早く感じる
ようになりました。
表題の通り、大田区南雪谷の大型邸宅が立ち並ぶ閑静な住宅街
の新築戸建のご紹介です。 ※2025年12月12日おかげさまで終了しました。




東急池上線「雪が谷大塚」駅より徒歩6分の駅近のエリアです
が、近隣はとても静かで、前面道路の向かい側が公園といった
場所です。公園は細いアプローチの先にあるので子供の声も
気にならない立地でした。

全面の道路も南東側で6.12mと広く、車の出し入れも容易
敷地はいわゆる旗竿型ですがお隣のカースペースと合わせて
かなり開放的で縦列駐車で2台は余裕をもってとめられます。

第1種低層住居専用地域なので高さ制限から1階(地下)に
なるので階段のアプローチが有りますが、LEDの間接照明が
良いアクセントになりお洒落なエントランスになります。

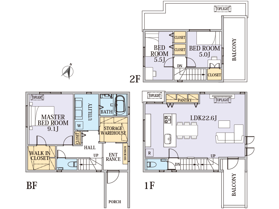
玄関ホールは広々として床の石材が高級感があります。
大型のシューズインクローゼット(備蓄倉庫)がありかなり
便利に使えそうです。






ホール部分から奥が洗面・浴室なんですが、これも帰宅後
すぐに手洗い出来て便利、浴室も広くゆったりしてます。
奥には9.1Jの広い主寝室があり、大型のWIC付です。



玄関ホールの広さは階段部分の天井高によるところもあり
かなり趣のある玄関ホールを演出してます。

2階(1階部分)はワンフロアが全てLDKで広さは22.6Jと
広々、大型のアイランドキッチンや壁面の収納など使い
安いやすさとトップライトやバルコニーなど設計デザイン
も秀逸です。






3階(2階部分)は5.5Jの洋室と広いバルコニーに出られる
5.0Jの二部屋の洋室を配置各お部屋には収納もあります。






ホワイトに映えるブラック系のファサードがモダンな
外観と箇所にアイデアを詰め込んだ設計でシンプルながら
住まう人の個性も引き立てる現代の都市型邸宅でした。
■物件概要
■2025年12月12日終了しました。
■所在地/大田区南雪谷4 丁目
■交通/東急池上線「雪が谷大塚」駅徒歩6 分
東急池上線「御嶽山」駅徒歩8 分
■接道/南東側6.12m公道面
■完成/ 2025 年9 月
■お問合せはエイムハウスHP
https://www.aimhouse.jp/contacts/
■公式ライン @aimhouse で検索
■Freeダイヤル 0120-5768-90
■担当:西前 翔
■公開:2025年12月6日 ■2025年12月12日終了しました。